Ref.: 4143 fotos

Mais fotos


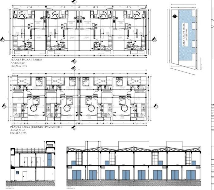
Sobrado Geminado
Consulte / VENDASobrado Geminado
ConsulteVenda
2, sendo 1 Suíte
1 Vaga
135 m²
Área Construída
Breve lançamento
Cômodos
2 Dormitórios, sendo 1 suíte2 Banheiros1 Vaga1 Sala de TV1 Cozinha1 Lavabo1 Sala de jantar1 Área de serviço
Proximidades
AcademiaPraçaSupermercadoTransporte públicoposto de gasolina
Descrição do imóvel
Disponíveis para Venda
Quatro casas geminadas, localizadas no loteamento Lorena.
Loteamento conta com uma infraestrutura completa, área pet, playground e chimarródromo.
São casas que possuem dois dormitórios, sendo uma suíte;
Dois banheiros, lavabo;
Lavanderia;
Sala de estar e de TV;
Sala e cozinha conjugadas, em formato L;
Uma vaga de garagem;
Valores: São Três Unidades pelo valor de R$350 mil, com exceção da casa de esquina que está R$450mil.
Em obras, com entrega de até 12 meses.
As informações estão sujeitas a alterações. Consulte o corretor responsável.
Localização
Tancredo Neves - Lorena - São Borja/RS | Complemento: Loteamento Lorena I - 97670-000
Ficha do imóvel
PerfilResidencial
SituaçãoBreve lançamento
Possui mobília?Sem mobília
Área Construída135m²

Janaina H.FingerCRECI - 66489
(55) 9 9171-7137Copiado!
Olá! Estamos disponíveis para te ajudar.



